
| Общая площадь | 407.77 м2 |
| Жилая площадь | 196.34 м2 |
| Площадь застройки | 385.6 м2 |
| Габариты | 13.6 x 25.3 м |
| Второй свет | Есть |
| Жилые комнаты 1 этажа, кроме гостиных | 2 шт |
| Спальни и жилые комнаты, кроме гостиных | 6 шт |
| С/у, ванны | 2 шт |
| Сауна | Есть |
| Гараж | Есть |
| Внешний вид: |
★★★★★ ★★★★★ |
| Планировки: |
★★★★★ ★★★★★ |
По данному проекту обзоров нет
Архив обзоров1-й этаж, высота 3.0 м 
2-й этаж, высота 2.8 м 
Вид спереди
Вид слева
Вид справа
Вид сзади
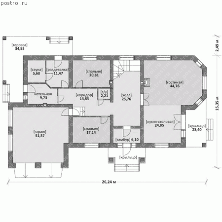
Проект дома с сауной и гаражом на 2 машины, запроектирован общей площадью 407,77 кв.м с габаритами 17,84 на 26,24 м. На заднем дворике дома, обустроена угловая терраса. Гараж, предусматривает два отдельных въезда. Для закладки основания представлен монолитный ленточный ж/б фундамент, стены из пустотелого кирпича, с отделкой штукатуркой, цементно-песчаная черепица, служит покрытием кровли. Высота первого этажа 3.0 м, а второго 2.8 м. На первом этаже, располагается кухня-столовая объединенная с гостиной, в которой обустроен камин, позволяющий проводить зимние вечера в теплой атмосфере. Также запроектирована две спальни, котельная с выходом на террасу, сауна с раздевалкой. Зона сна, располагается на втором этаже в виде четырех спален, балкона и большой ванной комнаты, объединенной с санузлом. Проект двухэтажного дома с сауной и гаражом, разработан в зеркальном варианте
| Материал: | Кол: | Ед.изм: | Коммент: |
|---|---|---|---|
| Строительный объём | 2168.71 | м3 |
Цены на проекты, услуги и все прочие товары приведенные ниже актуальны на 11.12.2025.
| Комплек |
Цена (руб): |
|---|---|
| Архитектурно-строительные чертежи M-407-1K | 35 000 |
| Доп. комплект чертежей без лицензии (копия для строителей) M-407-1K | 4 000 |
| Паспорт проекта M-407-1K | 4 500 |
| Дополни |
Цена (руб): |
| Строительство, материалы, консультация, смета | - |
Паспорт проекта и Доп. комплект чертежей без лицензии (копия для строителей) отдельно от основного комплекта не продаются.