
| Общая площадь | 145 м2 |
| Жилая площадь | 30 м2 |
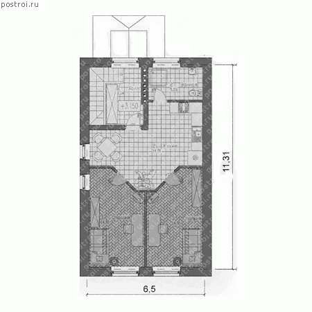
| Габариты | 11.31 x 6.5 м |
| Мансарда | Есть |
| Спальни и жилые комнаты, кроме гостиных | 2 шт |
| С/у, ванны | 1 шт |
| Гараж | Есть |
| Внешний вид: |
★★★★★ ★★★★★ |
| Планировки: |
★★★★★ ★★★★★ |
По данному проекту обзоров нет
Архив обзоров1-й этаж 
Мансарда 
Вид спереди
Вид слева
Вид справа
Вид сзади
Гараж с жилой мансардой, представлен общей площадью 145 кв.м и габаритами 11,31 на 6,5 м. Строительство проекта, осуществляет на монолитной ж/б плите, стены из кирпича, кровельным покрытием служит металлическая черепица. Гараж обустроен двумя въездами, его планировка позволяет разместить три машины. Вход в на мансардный этаж, возможен как с главных ворот, так и с задней части двора. Мансардный этаж, располагает две спальни, санузел с душевой кабиной и небольшую кухню-столовую. Данный тип гаража с мансардой, предусматривает проживание обслуживающего персонала
Цены на проекты, услуги и все прочие товары приведенные ниже актуальны на 02.04.2026.
| Комплек |
Цена (руб): | Цена со скидкой 10%: |
|---|---|---|
| Архитектурно-строительные чертежи A-145-1K | 29 000 | 26 100 |
| Доп. комплект чертежей без лицензии (копия для строителей) A-145-1K | 2 900 | 2 610 |
| Паспорт проекта A-145-1K | 2 900 | 2 610 |
| Дополни |
Цена (руб): | |
| Строительство, материалы, консультация, смета | - |
Паспорт проекта и Доп. комплект чертежей без лицензии (копия для строителей) отдельно от основного комплекта не продаются.